Beresford Road, Harringay, London, N8 0AL
Contact UsProperty Features
Property Description
Property Summary
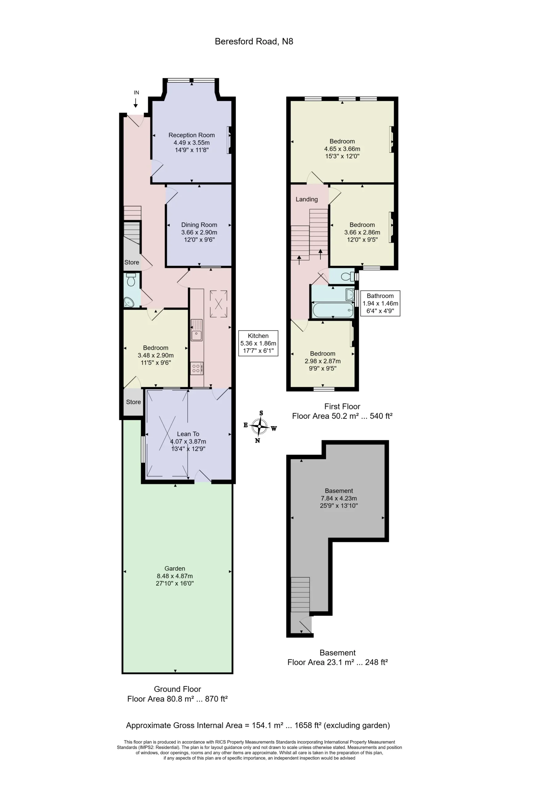
In need of refurbishment, the property presents an excellent canvas for buyers to add their own personal touch. The ground floor comprises three well-proportioned reception rooms, providing flexible living and entertaining space, with the kitchen located within the side extension. A full-sized basement offers additional storage or development potential, while a convenient ground-floor WC adds practicality.
The upper floors accommodate three spacious double bedrooms and a family bathroom. The property is arranged over multiple levels, enhancing the sense of space and versatility. Furthermore, there is potential for a loft extension (subject to the necessary planning permissions), providing scope for additional living accommodation.
Offered with no forward chain, this home represents an exciting opportunity to modernise and tailor a period property to individual tastes in a desirable North London location.
- More information about rooms
An exciting opportunity to acquire a spacious and characterful three-bedroom period home, ideally positioned on the ever-popular Harringay Ladder. Arranged over an impressive 1,658 sq ft, this mid-terraced property is bursting with potential and awaits a new owner ready to modernise and make it their own.
The ground floor boasts three generous reception rooms, offering versatile living and entertaining space, alongside a side-extended kitchen and a convenient ground-floor WC. A full-sized basement provides valuable storage or the potential for further development (STPP).
Upstairs, you’ll find three well-sized double bedrooms and a family bathroom, all spread across multiple levels that enhance the home’s spacious and flexible layout. There is also the possibility to extend into the loft (subject to planning), allowing for even more living accommodation if desired.
Offered with no forward chain, this period property is a rare find – a perfect project in a prime North London location, just waiting to be transformed into a truly special home.
